Война токов и патентов

We use cookies. Read the Privacy and Cookie Policy

Со времен Фарадея… никогда ни одна экспериментальная истина не была представлена так просто и понятно, как описание Теслой его способа получения и использования многофазных переменных токов. Он ничего не оставил своим последователям для доработки. Его труды содержат даже математическую основу теории.

Б. А. Беренд, доктор наук. Послесловие к лекции Теслы «Новая система двигателей переменного тока и трансформаторов» в Американском институте инженеров-электротехников

Это не был просто новый двигатель, но вполне обоснованная новая технология. Суть системы переменного тока Теслы заключается в удивительно простом индукционном двигателе, практически не имеющем электрических подводящих частей, которые могли бы выйти из строя.

Уильям А. Антониони, профессор Корнеллского университета

Макет электрогенератора переменного тока.

Электрическая компания Теслы с капиталом в полмиллиона долларов открыла свое дело в апреле 1887 года. По иронии судьбы лаборатория и мастерские, которые Тесла нашел для своей новой компании, ранее принадлежали Эдисону. Для изобретателя, столь долго ожидавшего такого момента, это было осуществлением его мечты. Он начал работать, подобно одной из своих динамо-машин, — день и ночь, практически без отдыха.

Поскольку идею он уже давно вынашивал и все просчитал, ему потребовалось лишь несколько месяцев, для того чтобы начать оформление документов патента для всей многофазной системы переменного тока. В действительности это были три полные системы однофазного, двухфазного и трехфазного переменного тока. Тесла ставил эксперименты также с другими типами многофазных систем, и для каждого типа он создавал динамо-машины, двигатели, трансформаторы и автоматические элементы управления.

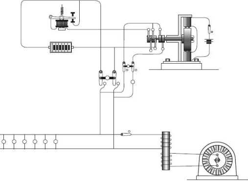
Система выработки и передачи переменного тока Вестингауза.

В это время в Америке действовали сотни небольших электростанций, в которых использовалось по крайней мере 20 различных вариантов электрических контурных схем и типов оборудования. Обычно эти электрические схемы соответствовали одному изобретению или даже целой группе патентов. Джордж Вестингауз, изобретатель железнодорожного тормоза, купивший многие патенты на системы переменного тока, решил построить трансформаторную систему преобразования и передачи переменного тока. В 1886 году она была успешно опробована, а вскоре Вестингауз ввел в действие первую в Америке коммерческую систему переменного тока. Через год в нее входило уже более 30 электростанций. Так у «империи Эдисона» появился сильный и опасный конкурент в сфере электротехники.

Джордж Вестингауз (1846–1914).

Главным препятствием на пути развития систем переменного тока было отсутствие простых, надежных и экономичных двигателей-генераторов. Полгода упорного труда в новой компании быстро принесли свои плоды — и Тесла смог послать в Патентную комиссию США сразу несколько заявок на многофазные двигатели и системы переменного тока. Надо заметить, что в течение пяти последующих лет он оформил 40 патентов, причем многофазные системы Теслы были настолько оригинальными и всеохватывающими, что патентовались абсолютно беспрепятственно.

По предложению основателя одного из первых курсов электротехники в Корнеллском университете профессора Уильяма Антониони малоизвестный инженер-эмигрант был приглашен 16 мая 1888 года прочесть чрезвычайно престижную публичную лекцию в Американском институте инженеров-электротехников. К своему удивлению, Тесла обнаружил в себе способности оратора, а его лекция под названием «Новая система двигателей переменного тока и трансформаторов» стала классической.

По моему мнению, Джордж Вестингауз был единственным человеком на земном шаре, который смог принять мою систему переменного тока в существовавших тогда обстоятельствах и выиграть битву против предубеждений и власти денег. Он был первопроходцем, который впечатлял своим величием, одним из истинных благородных людей, которыми может гордиться Америка и перед которыми человечество находится в неописуемом долгу благодарности.

Н. Тесла

Этот период жизни был потрясающе удачным для Теслы. Его патенты были именно тем недостающим звеном, которое так искал для своих систем переменного тока американский промышленник, инженер и предприниматель Джордж Вестингауз. Он с самого начала сумел оценить гигантский потенциал электросистем переменного тока, способных передавать ток высокого напряжения через огромные американские просторы.

Ниагарский водопад.

Как-то Вестингауз посетил Теслу в его лаборатории и рассказал о своей идее построить гидроэлектростанцию переменного тока на Ниагарском водопаде. Эта идея увлекла изобретателя. Мастерская и лаборатория Теслы были переполнены поражающими воображение аппаратами и приборами. Вестингауз ходил от машины к машине, иногда нагибался вперед, опираясь руками на колени, пристально вглядывался, а иногда, склонив голову, слушал ровный рокот и жужжание разнообразных двигателей переменного тока. Так началась дружба видного предпринимателя и выдающегося изобретателя.

Карта Всемирной выставки 1893 года в Чикаго.

Всемирная чикагская выставка занимала громадную территорию в 175 км2, на ней было представлено 60 000 экспонатов, а проведение обошлось в 25 млн долларов. За полгода работы выставку посетили 28 млн гостей, принесших устроителям 2,25 млн долларов прибыли. Символом ярмарки стало огромное колесо обозрения инженера Ферриса, вращающееся на цельнометаллической оси, с кабинками, возносящими 2000 человек на 80-метровую высоту.

Триумфы переменного тока следовали один за другим. Так, в 1893 году на Всемирной чикагской электрической выставке, посвященной 300-летию открытия Америки, фирма Вестингауза обеспечивала все электроосвещение и установку электродвигателей. Открытием выставки стала экспозиция генераторов и электродвигателей Теслы. У него был собственный стенд, где демонстрировались многие изобретения, в частности прибор для демонстрации возможности получения механического вращения с помощью вращающегося магнитного поля. Этот прибор представлял собой плоскую металлическую сковородку, находившуюся в зоне действия катушек, создававших вращающееся магнитное поле. На сковородке лежало выточенное из меди яйцо. При пропускании тока через обмотки катушек оно начинало беспорядочно двигаться, а затем, встав на острый конец, быстро вращалось как вокруг своей оси, так и по окружности сковородки.

Современная модель яйца Теслы.

Следующим значимым событием в истории переменных токов было строительство самой крупной в мире в те годы гидроэлектростанции на Ниагарском водопаде. Этот величайший в мире водопад давно уже привлекал внимание предпринимателей, мечтавших использовать его энергию. Еще в 1886 году была создана специальная компания по изучению возможности строительства гидроэлектрической станции. Однажды Вестингауз торжественно объявил Тесле, что начинает борьбу за право своей компании «запрячь в электрическое динамо» Ниагарский водопад. Между тем общая ситуация была не очень благоприятной, ведь председателем Международного комитета Ниагары, учрежденного для того, чтобы выбрать наилучший способ применения Ниагарского водопада, был лорд Кельвин — известный английский ученый, сторонник постоянного тока.

Памятник Николе Тесле у Ниагарского водопада с постаментом в виде динамо-машины переменного тока.

И лишь в 1893 году под влиянием успеха фирмы Вестингауза на Чикагской выставке Комитет Ниагары принял проект выработки переменного тока. В 1896 году на Ниагарской гидроэлектростанции установили три генератора двухфазного тока, который затем трансформировался в трехфазный высокого напряжения и передавался потребителям, где снова превращался в двухфазный. Запуск Ниагарской станции стал последним триумфом двухфазного тока. Несомненные преимущества трехфазного тока вытеснили менее совершенный двухфазный ток не только в Европе, но и в США. Саму Ниагарскую станцию вскоре переоборудовали, установив на ней трехфазные генераторы.

Генераторный зал современной Ниагарской ГЭС.

Эти генераторы, а также электродвигатели и трансформаторы изобрел выдающийся русский инженер Михаил Осипович Доливо-Добровольский (1861–1919). Необходимо отметить, что в начале 1890-х годов Вестингаузу и Тесле приходилось бороться на два фронта, отстаивая идею переменного двухфазного тока не только перед постоянным током Эдисона, но и перед трехфазным током русского изобретателя. Вскоре всем экспертам-электротехникам стало ясно, что оборудование и линии электропередачи, созданные Доливо-Добровольским, обладают значительными преимуществами перед всеми другими вариантами динамо-машин. Простота конструкции трехфазного электродвигателя русского изобретателя и экономия медного провода в линиях передачи давали в использовании трехфазного тока больше преимуществ. С этого времени трехфазная система начала применяться во всем мире.

К чести Теслы, он всегда находился вне яростной «борьбы патентов», считая, что его открытия могли бы использоваться во всем мире без всяких ограничений. Однако каковы бы ни были убеждения Теслы и как бы он ни симпатизировал другим изобретателям, фирмы, скупившие его патенты, распоряжались ими по своему усмотрению. Правда, в конце 1890-х годов Теслу уже мало интересовали вопросы приоритета его первого изобретения. Творческий поиск увел его в совершенно новую область электрических явлений.

Более 800 000 книг и аудиокниг! 📚

Получи 2 месяца Литрес Подписки в подарок и наслаждайся неограниченным чтением

ПОЛУЧИТЬ ПОДАРОК